戸建ての周りの排水桝を全て取替えする工事も終盤です
コンクリート桝を塩ビ桝に交換する工事は年々増加しています。
昔はコンクリート桝が標準施工でしたが、コンクリート桝の場合は約 15 年~20 年程で劣化が進みヒビが入ったりします。
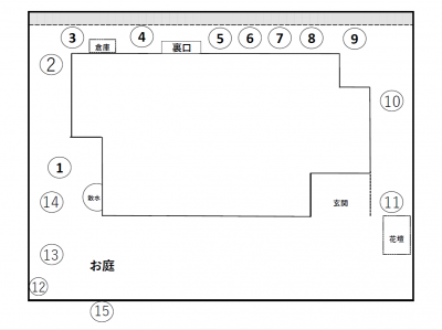
◆既存桝の位置
この工事の始めからのブログはコチラ↓↓↓
・劣化した排水桝 と木の根侵入を同時に解消|戸建て住宅 桝工事①
・限られたスペースで勾配をどう取ったか|コンクリート桝から小口径桝へ 桝工事②
玄関横にある雨水桝⑨の取替えに入ります。
こちらのコンクリート桝もバケツ桝(ポリバケツ型排水桝)へ交換します。
◆雨水桝⑨撤去
配管の高さを決めホールソーという電動ドリルの先に取付けて使用する円筒状の刃物で丸い穴を開けます。
◆ホールソーでカット
その後「バリ取り」し接着剤が均一に塗れるように整えます
※「バリ取り」とは:金属や樹脂などの部品加工時に発生する不要な突起(バリ)を取り除く仕上げ作業を言います
◆バリ取り作業
穴を開けたバケツ桝に配管にを設置し接続面を塩ビ管用接着剤で固定し乾かします。
◆接着剤塗布
雨水桝の蓋に穴が開いているので、その穴から土が入らないようにタオルで養生しながら埋設作業を行います
◆バケツ桝埋設作業
タンパーで強い固めながら仕上げます
◆雨水桝設置
◆AFTER
続いてお庭にある桝⑩に取掛ります
お庭にはたくさんの木々が植えられたおり、経年劣化を起こしているコンクリート桝には木の根が集まり桝や配管へ侵入してくるため被害を受けやすい場所となります。
◆木の根
桝⑩の周りの土を掘りコンクリート桝をハンマー等で叩き割り、撤去していきます
◆桝⑩撤去作業
割れた桝は土嚢袋に入れて全て取り除きます。
◆コンクリート桝撤去
桝に接続されていた接続管部分も取り外します
配管内に土や異物が入り込んでいないか確認をします。
◆接続管の撤去
この後、配管内に土や異物が入り込まないように、詰め物をしておきます
タンパーを使い強い固めたら、新しい接続管を取付けます
◆桝撤去完了(桝⑩)
桝⑩と桝⑪の間に埋設されている配管を手作業で掘り起こしていきます
◆掘削作業
配管が完全に露出するまで掘り起こし配管を取り替えます
◆配管取替え作業
設置した配管にバケツ桝⑪(雨水桝)を取付けます
◆バケツ桝設置
一旦撤去していた土を少しずつ戻しタンパーで強い固めながら配管と埋設していきます
◆埋設作業
最後に桝⑩も新しいバケツ型 雨水桝を設置し、更に小口径に雨水桝を増やし設置しました
◆雨水桝⑩
施工後の桝の全体図です
汚水桝を裏口のところで2つ増やし、雨水桝をお庭のところで1つ増やしました。
◆施工後の桝全体図
上の図の⑭(雨水桝)と①(汚水桝)の桝です
◆AFTER
②(雨水桝)と③(汚水桝)
◆AFTER
④(汚水桝)の桝です
◆AFTER
⑤⑥⑦⑧(汚水桝)の桝です
◆AFTER
⑨(汚水桝)の桝です
◆AFTER
⑩(雨水桝)の桝です
◆AFTER
⑪(雨水桝)の桝です
◆AFTER
⑫⑬(雨水桝)の桝です
◆AFTER
⑮の桝です
◆AFTER
最後に一旦撤去していた植木を移植し肥料を与えておきました。
◆木の移植
この工事の始めからのブログはコチラ↓↓↓
劣化した排水桝 と木の根侵入を同時に解消|戸建て住宅 桝工事①
限られたスペースで勾配をどう取ったか|コンクリート桝から小口径桝へ 桝工事②
弊社では、その他の施工事例も多数掲載しております。是非、ご覧ください!
排水桝のその他の事例はコチラから↓↓↓
https://www.katsuhara-s.com/archives/category/cat13
工事事例TOPはコチラから↓↓↓
https://www.katsuhara-s.com/blog
トラブランでは、YouTubeで動画も公開しております。
是非、ご覧ください。
視聴はコチラから↓↓
http://www.youtube.com/subscription_center?add_user=toraburanReform
チャンネル登録お願いします。
トラブランでは24時間,365日対応させて頂きますので、配管の詰まり、水のトラブル、何かお困りの事があれば、お気軽にトラブランまで ご相談ください!



















































